1390 96th E Street E Inver Grove Heights (MN) 55077
$819,900 Closed
StatusClosed Beds5 Baths5 Living Area4616 YR1990 School District196 DOM22

Public Remarks

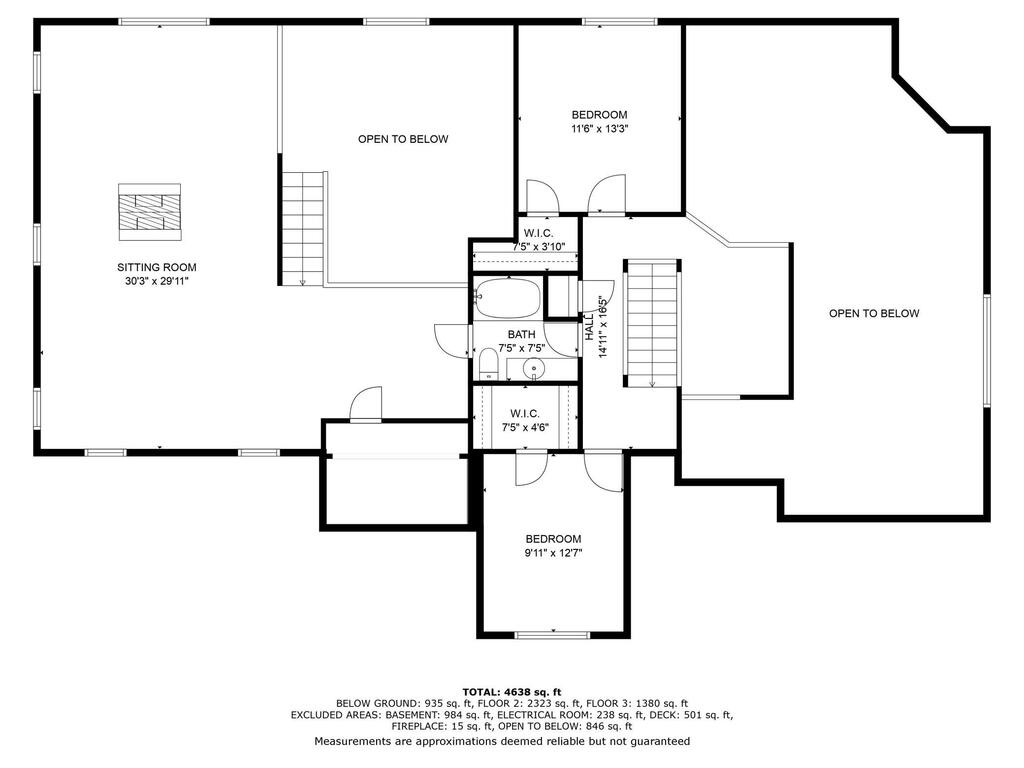
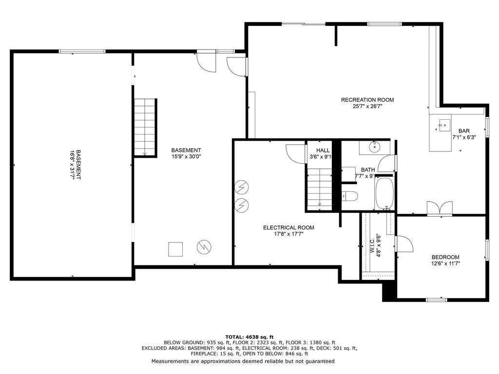
Two home within one! Yes both sides!! A perfect multi-generational retreat for the expanded family or simply an expansive single-family residence with numerous repeated spaces. Two Kitchens, several living / family room / entertainment spaces. 5 bedrooms, 5 baths as the home currently sits, yet can be easily be 7+ bedrooms and additional baths. Live in separate sides, providing privacy between generations or live as a large lodge among the spaces. Large spacious 2.45-acre lot is the host of this 4616 square foot home that boasts 4 car garage spaces, 2 attached and two detached. Nature is the view from the sprawling home(s). Western home space has main floor living with an additional 3 bedrooms, 3 living spaces plus a three-season porch, and 3 decks. The eastern home space again is appointed with all living facilities on the main level. Upper level contains a huge loft space that can easily be re-purposed to the future owner's requirements or wants. Lower level of this side is unfinished and a blank canvas for one to create their own masterpiece. Unique, Unconventional, Unbelievable - Ur's for the asking! Addition was added in 2010 and septic was bought up to compliance at that time.

Quick Specifications

Price :
$819,900
Status :
Closed
Property Type :
Residential
Beds :
5
Year Built :
1990
Approx. Sq. Ft :
4616
School District :
196
MLS# :
6694176

Interior Features

Foundation Size :
2258
Fireplace Y:N :
3
Baths :
5
Bath Desc :
3/4 Basement,Double Sink,Bathroom Ensuite,Full Primary,Private Primary,Main Floor 1/2 Bath,Main Floor Full Bath,Separate Tub & Shower,Walk-In Shower Stall

Lot and Location

PostalCity :
Dakota
Zip Code :
55077
Directions :
Hiawatha Pioneer Trail, East on Blaine Ave East, Left on 96th St E, Home on the left.
Lot Description :
Many Trees
Lot Dimensions :
irregular
Road Frontage :
City Street, Unpaved Streets
Zoning :
Residential-Single Family
School District :
196
School District Phone :
651-423-7700

Structural Features

Class :
Residential
Basement :
Block, Finished, Full, Storage Space, Sump Pump, Walkout
Exterior :
Steel Siding
Garage :
4
Accessibility Features :
None
Roof :
Asphalt, Pitched
Sewer :
Private Sewer
Water :
Private, Well

Financial Considerations

Foreclosure Status :
No
Lender Owned :
No
Potential Short Sale :
No
Latitude :
44.809748
MLS# :
6694176
Style :
Single Family Residence
Tax With Assessments :
9576.0000
Tax Year :
2024