21397 Crimson Court Credit River Twp (MN) 55044
$1,300,000 Closed
StatusClosed Beds5 Baths4 Living Area3941 YR2015 School District194 DOM30

Public Remarks

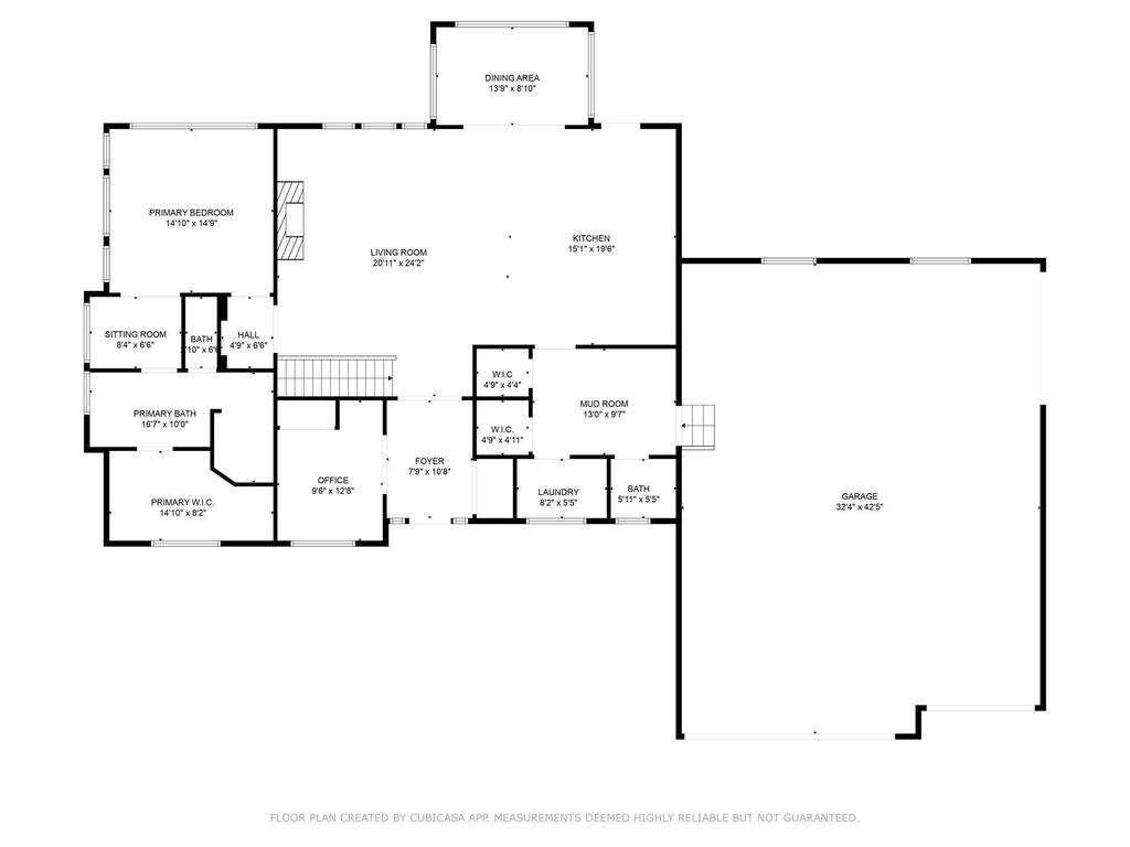
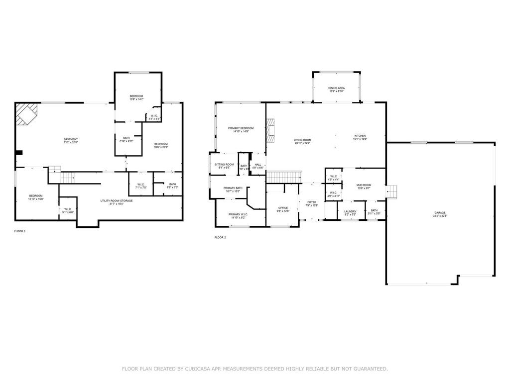
Welcome to 21397 Crimson Court in Lakeville —an extraordinary, one-owner home nestled on 3.21 serene, wooded acres. This meticulously maintained 5-bedroom, 4-bathroom residence offers the perfect combination of high-end features, unmatched privacy, and incredible convenience—just 2 miles from I-35, yet tucked away in a peaceful, park-like setting. From the moment you arrive, you'll feel the pride in ownership. The main floor is loaded with quality finishes, including gorgeous black walnut hardwood floors, a spacious open layout, and an entertainer’s dream kitchen featuring an oversized center island, stainless steel appliances, and a stunning dining banquette seating area. The dining table perfectly complements the space—and the sellers are happy to leave it for the next lucky owner. The main-floor primary suite is a true retreat, offering separate vanities, a large walk-in closet, and a bonus sitting room ideal for relaxing or working from home. You'll also find a large mudroom, main-floor laundry, pantry, closet, half bath, and a versatile flex room that works great as an office or additional bedroom. Don't miss the inviting great room on this level, complete with a cozy gas fireplace—perfect for chilly Minnesota evenings. Downstairs, the finished lower level includes a large family room with a second gas fireplace and an included pool table. The space is also plumbed for a future wet bar, making it perfect for entertaining. Three generous bedrooms are located on this level, two of which have private ensuite bathrooms, offering excellent options for guests or multigenerational living. Step outside and enjoy your own private sanctuary, complete with mature oak trees, vibrant flower gardens, and frequent visits from deer, turkeys, foxes, eagles, and owls. Relax on the welcoming front porch or the private back deck, where you can take in breathtaking sunrises and sunsets in peace and quiet. The 6-car garage is ideal for car lovers, hobbyists, or extra storage, and includes plumbing ready for a dog-washing station. The oversized driveway provides ample parking for guests, RVs, boats, or trailers. With no HOA, no water or sewer bills, and countless thoughtful upgrades throughout, this rare, original-owner property is a true gem in Lakeville and Credit River. Don’t miss your chance to own this one-of-a-kind retreat!

Quick Specifications

Price :
$1,300,000
Status :
Closed
Property Type :
Residential
Beds :
5
Year Built :
2015
Approx. Sq. Ft :
3941
School District :
194
Taxes :
$ 10264
MLS# :
6709230

Interior Features

Foundation Size :
2141
Fireplace Y:N :
2
Baths :
4
Bath Desc :
Two Basement Baths,3/4 Primary,Double Sink,Full Primary,Main Floor 1/2 Bath,Main Floor 3/4 Bath,Jetted Tub

Lot and Location

PostalCity :
Scott
Zip Code :
55044
Directions :
Take Highway 35 to County Road 70 and head west. Turn south on France Boulevard, then go east on Frontier Lane. Crimson Court will be just ahead.
Complex/Development/Subd :
Frontier Estates
Lot Description :
Many Trees, Some Trees
Lot Dimensions :
Irregular
Road Frontage :
City Street, Cul De Sac, Paved Streets
Zoning :
Residential-Single Family
School District :
194
School District Phone :
952-232-2000

Structural Features

Class :
Residential
Basement :
Concrete
Exterior :
Brick/Stone, Fiber Cement, Vinyl Siding
Garage :
6
Accessibility Features :
Hallways 42"+, Door Lever Handles, Soaking Tub
Roof :
Age Over 8 Years
Sewer :
Septic System Compliant - Yes
Water :
Well

Financial Considerations

Foreclosure Status :
No
Lender Owned :
No
Potential Short Sale :
No
Latitude :
44.639673
MLS# :
6709230
Style :
Single Family Residence
Complex/Development/Subd :
Frontier Estates
Tax Amount :
$ 10264
Tax With Assessments :
10264.0000
Tax Year :
2025