33230 Lake Emily Road Saint Peter (MN) 56082
$399,900 Closed
StatusClosed Beds2 Baths2 Living Area1895 YR1965 School District508 DOM23

Public Remarks

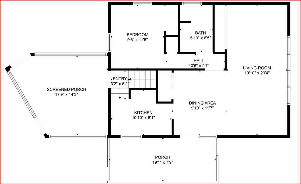
Highest and best by Sunday 6/15 by 5 p.m.. Lakeshore living - a choice, a destination, a lifestyle. Capture this 13+ acre parcel(s) that borders the 1080 feet of shoreline of Lake Emily. Emily is a 300-acre waterway in Le Sueur County bosting depths up to 37 feet and the main fishing species of Black Bullhead, Black Crappie, Northern Pike, Walleye, and Sunfish. The main home contains two bedrooms, 2 baths, 2 living spaces, and a lakeside porch. There is a finished guest space / on-property office space within the detached two-car garage. Less than an hour from the southern portions of the Twin Cities, this weekend getaway or year-round Lake home offers a quick jaunt to St. Peter / Mankato. Only one mile from the center of St. Peter’s charming downtown with brew pubs, restaurants, boutique shops, grocery and liquor stores. Consider the possibilities - Live fulltime along the shoreline, a quick drive to the Family Cabin, a home purchased while the College Student is in school, doubling as the weekend getaway for the remainder of the group. With the expansive property that surrounds the home - have extended family/friends, bring their RVs / Campers / Tents to stay amongst nature while enjoying the amenities that come with lakeshore - 1080 feet of Lake Shore. Blocks from Shoreland Country Club, one may satisfy numerous passions in a short distance. 'Lake People' are a unique and intriguing breed - this is your opportunity to cash in on this new perspective, this new Lifestyle. Great fishing lake, here are some of the noted fish in the lake. : black bullhead, black crappie, bluegill, channel catfish, flathead catfish, green sunfish, hybrid sunfish, largemouth bass, northern pike, pumpkinseed, walleye, white crappie, yellow bullhead, yellow perch, bigmouth buffalo, common carp, white sucker, golden shiner.

Lake Information

Lake/Waterfront Name:
Emily Lake (Kasota Twp.) (40012400)
Lake/Waterfront:
Lake Front
Waterfront Footage:
1080
Road Between Waterfront and Home:
No
Elevation Highpoint to Waterfront Slope:
Level
Waterfront View:
Bay, East, Lake, North, Panoramic
Lake Size in Acres:
300
Lake Chain Name:
N
Lake Depth:
37
Lake Number:
40012400

Quick Specifications

Price :
$399,900
Status :
Closed
Property Type :
Residential
Beds :
2
Year Built :
1965
Approx. Sq. Ft :
1895
School District :
508
Taxes :
$ 3258
MLS# :
6727921

Interior Features

Foundation Size :
768
Baths :
2
Bath Desc :
1/2 Basement,Main Floor Full Bath

Lot and Location

PostalCity :
Le Sueur
Zip Code :
56082
Directions :
From the metro, take 169 go to Saint Peter. Left on 22 So. Left on 21. Straight on 18. Straight on 19.
Lot Dimensions :
irregular
Zoning :
Residential-Single Family
School District :
508
School District Phone :
507-934-5703

Structural Features

Class :
Residential
Basement :
Block, Finished, Full
Exterior :
Wood Siding
Garage :
2
Accessibility Features :
None
Sewer :
Private Sewer
Water :
Private

Financial Considerations

DPResource :
Y
Foreclosure Status :
No
Lender Owned :
No
Potential Short Sale :
No
Latitude :
44.31057
MLS# :
6727921
Style :
Single Family Residence
Tax Amount :
$ 3258
Tax With Assessments :
3258.0000
Tax Year :
2024